IMMORath.de - Sanierte Doppelhaushälfte in Kollmarsreute mit Garten
Verkauft


















- Objektart
- Haus
- Objekttyp
- Doppelhaushälfte
- Vermarktungsart
- Kauf
- PLZ
- 79312
- Ort
- Emmendingen / Kollmarsreute
- ImmoNr
- IR1124244
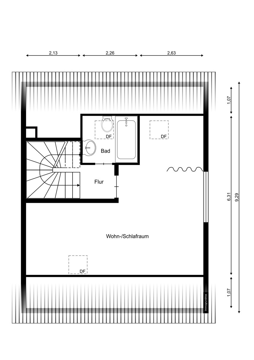
- Wohnfläche
- ca. 137 m²
- Grundstücksgröße
- ca. 280 m²
- Nutzfläche
- ca. 16 m²
- Anzahl Zimmer
- 5
- Anzahl Badezimmer
- 2
- Kaufpreis
- 629.000,00 €
- Baujahr
- 1972
- Endenergieverbrauch
- 58,2 kWh/(m²a)
- Energieausweis
- Verbrauchsausweis
- Energieausweis gültig bis
- 27.08.2034
- Energieeffizienzklasse
- B
- Käuferprovision
- 3,57%
- wesentlicher Energieträger
- Öl
Beschreibung
- Doppelhaushälfte in begehrter Lage von Emmendingen, Ortsteil Kollmarsreute- Baujahr 1972, gepflegter Zustand
- Insgesamt 3 Etagen bieten viel Platz für die ganze Familie
- Wohnfläche von ca. 137 m², zusätzlich ca. 16 m² Nutzfläche
- Großzügige 4 Zimmer verteilen sich auf die Etagen
- Solarthermieanlage (installiert 2006) für Warmwasser und Heizungsunterstützung
- Umfangreiche Gebäudedämmung für hervorragende Energieeffizienz
- Umweltfreundliche Hybridheizung kombiniert Öl- und Solarenergie
- Zwei voll ausgestattete Badezimmer, beide inklusive Badewanne
- Unterkellerung vorhanden zur optimalen Nutzung der Fläche
- Sonnige Terrasse und Balkon für entspannte Stunden im Freien
- Übergabe frei nach Absprache
Entdecken Sie Ihr neues Zuhause in dieser charmanten Doppelhaushälfte, ideal für Familien oder Paare, die eine ruhige und zugleich gut angebundene Wohnlage suchen. Vereinbaren Sie noch heute einen Besichtigungstermin!
Lage
Diese charmante Doppelhaushälfte befindet sich in der idyllischen Ortschaft Kollmarsreute, einem Teil von Emmendingen. Die Lage bietet eine harmonische Verbindung von naturnahem Wohnen und urbaner Anbindung. Das Zentrum von Emmendingen ist lediglich 3,6 Kilometer entfernt und bietet eine Vielzahl von Einkaufsmöglichkeiten, Restaurants und kulturellen Angeboten.Für Familien mit Kindern ist die Lage geradezu ideal: Ein Kindergarten ist in nur 900 Metern zu erreichen und die nächste Grundschule liegt nur 350 Meter entfernt. Weiterführende Schulen, darunter eine Realschule und ein Gymnasium, befinden sich in Emmendingen.
Pendler profitieren von der nahen Autobahn, die sich in 8,5 Kilometern Entfernung befindet, und damit rasche Verbindungen in die umliegenden Städte offeriert. Diese geografische Position macht das Haus sowohl für Berufspendler als auch für Ruhesuchende, die die Vorzüge ländlicher und dennoch zentraler Lage schätzen, besonders attraktiv.
Genießen Sie die Vorzüge eines ruhigen Wohngebiets mit der Nähe zu allen notwendigen Annehmlichkeiten und einer hervorragenden Infrastruktur.
Sonstige Angaben
Sie haben Interesse und möchten zeitnah die Immobilie besichtigen? Kein Problem! Schicken Sie uns gerne Ihre Anfrage, Sie werden von der Immobilie begeistert sein!Alle vom Eigentümer bereitgestellten Informationen werden als zuverlässig erachtet, aber nicht garantiert und sollten unabhängig verifiziert werden. Wir übernehmen keinerlei Gewähr für die Richtigkeit der Angaben.
Der Courtageanteil des Käufers beträgt 3,57% des tatsächlichen Kaufpreises inklusive der gesetzlichen Mehrwertsteuer.
Der Courtageanteil ist im Kaufpreis nicht enthalten und ist vom Käufer an uns zu zahlen. Er ist fällig und zahlbar bei Notariat.
