Ehemaliger Winzerhof mit zwei Wohnhäusern und großer Scheune
Verkauft




















- Objektart
- Haus
- Objekttyp
- Einfamilienhaus
- Vermarktungsart
- Kauf
- PLZ
- 79235
- Ort
- Vogtsburg im Kaiserstuhl / Bischoffingen
- ImmoNr
- IR0124146
- Wohnfläche
- ca. 140 m²
- Grundstücksgröße
- ca. 657 m²
- Anzahl Zimmer
- 5
- Anzahl Badezimmer
- 1
- Kaufpreis
- 380.000,00 €
- Baujahr
- 1964
- Endenergiebedarf
- 397 kWh/(m²a)
- Energieausweis
- Bedarfsausweis
- Energieausweis gültig bis
- 19.07.2032
- Energieeffizienzklasse
- H
- Käuferprovision
- 2,975
- wesentlicher Energieträger
- Öl
Online - Beschreibung
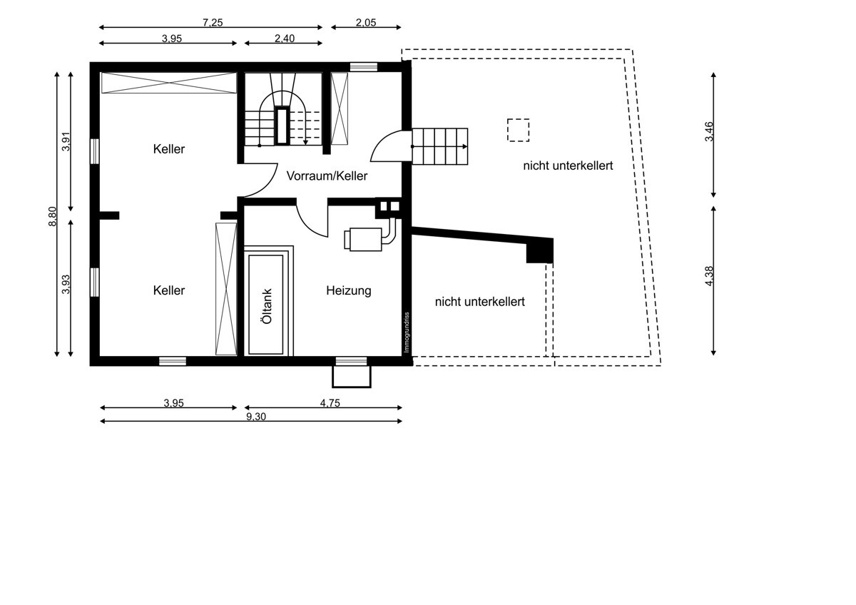
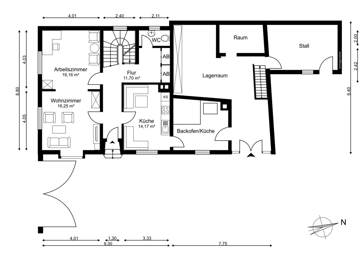
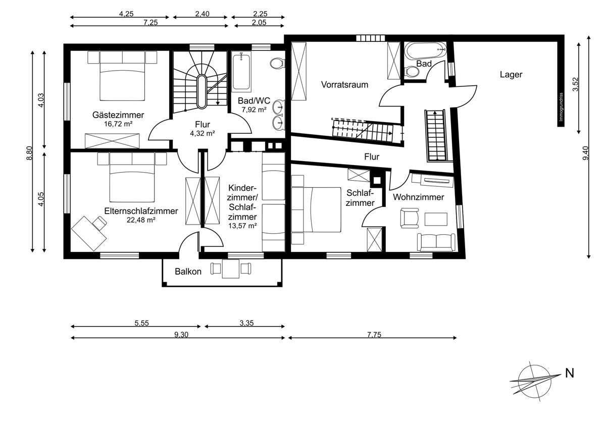
Zum Verkauf steht ein charmantes Einfamilienhaus in Vogtsburg im Kaiserstuhl / Bischoffingen mit viel Platz. Das neuere Haus zur Straße hin wurde im Jahr 1964 erbaut und verfügt über eine Wohnfläche von ca. 140 m². Es erstreckt sich über drei Etagen und bietet insgesamt fünf Zimmer sowie ein Badezimmer.Das Haus ist vollständig unterkellert und befindet sich in einem renovierungsbedürftigen Zustand. Es bietet jedoch viel Potenzial, um nach eigenen Vorstellungen gestaltet und modernisiert zu werden. Ein Balkon ist ebenfalls vorhanden, der einen schönen Ausblick ermöglicht.
Das ältere, sanierungsbedürftige Haus wurde ca. 1900 erbaut und ist nicht unterkellert.
Das Anwesen umfasst zudem eine Scheune und einen Carport sowie Garagen, deren Dächer im Jahr 2002 saniert und neu eingedeckt wurden.
Die Übergabe des Hauses erfolgt frei nach Absprache.
Für weitere Informationen oder einen Besichtigungstermin stehen wir Ihnen gerne zur Verfügung.
Online - Lage
Das Einfamilienhaus befindet sich in Vogtsburg im Kaiserstuhl, genauer gesagt im Ortsteil Bischoffingen. Umgeben von Weinbergen liegt das Dorf am Rande des Kaiserstuhls mit wenig Durchgangsverkehr. Der Kaiserstuhl ist für seine schönen Wanderwege und einzigartigen Naturschutzgebiete bekannt.Für Familien mit kleinen Kindern ist die Lage besonders attraktiv, da sich der Kindergarten im Ort befindet und auch die Grundschule sehr nah, im nächsten Ort liegt. Für ältere Kinder stehen weiterführende Schulen wie die Realschule und das Gymnasium in einer Entfernung von etwa 10 km zur Verfügung.
Die nächste größere Stadt Breisach am Rhein ist ca. 10 km entfernt und bietet vielfältige Einkaufsmöglichkeiten. Einkaufsmöglichkeiten für den täglichen Bedarf, Ärzte und Apotheken befinden sich in knapp 3 km Entfernung in Oberrotweil.
Insgesamt bietet die Lage der Immobilie eine gute Balance zwischen naturnaher Umgebung und guter Anbindung an die Infrastruktur.
Online - Sonstige Angaben
Sie haben Interesse und möchten zeitnah die Immobilie besichtigen? Kein Problem! Schicken Sie uns gerne Ihre Anfrage, Sie werden von der Immobilie begeistert sein!Alle vom Eigentümer bereitgestellten Informationen werden als zuverlässig erachtet, aber nicht garantiert und sollten unabhängig verifiziert werden. Wir übernehmen keinerlei Gewähr für die Richtigkeit der Angaben.
Der Courtageanteil des Käufers beträgt 2,98% des tatsächlichen Kaufpreises inklusive der gesetzlichen Mehrwertsteuer.
Der Courtageanteil ist im Kaufpreis nicht enthalten und ist vom Käufer an uns zu zahlen. Er ist fällig und zahlbar bei Notariat.
