Ein/Zweifamilienhaus mit Scheunen, großem Garten und Rebfläche
Verkauft


















- Objektart
- Haus
- Objekttyp
- Einfamilienhaus
- Vermarktungsart
- Kauf
- PLZ
- 79235
- Ort
- Vogtsburg im Kaiserstuhl / Niederrotweil
- ImmoNr
- IR0224158
- Wohnfläche
- ca. 150 m²
- Grundstücksgröße
- ca. 2.470 m²
- Nutzfläche
- ca. 100 m²
- Anzahl Zimmer
- 4
- Anzahl Badezimmer
- 2
- Kaufpreis
- 395.000,00 €
- Baujahr
- 1935
- Endenergiebedarf
- 239,7 kWh/(m²a)
- Energieausweis
- Bedarfsausweis
- Energieausweis gültig bis
- 04.02.2033
- Energieeffizienzklasse
- G
- Käuferprovision
- 2,98
- wesentlicher Energieträger
- Elektro
Online - Beschreibung
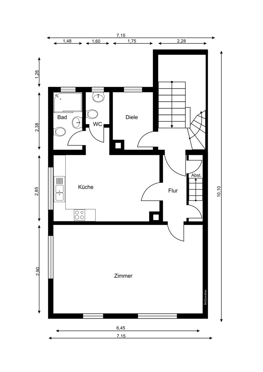
Das renovierungsbedürftige Einfamilienhaus in Vogtsburg im Kaiserstuhl / Niederrotweil bietet auf drei Etagen eine Wohnfläche von ca. 150 m² und eine Nutzfläche von ca. 100 m². Das ca. 1935 erbaute Haus verfügt über 4 Zimmer, 2 Badezimmer, einen Kamin, eine Terrasse und einen überdachten Balkon. Es ist unterkellert und befindet sich in ruhiger Wohnlage mit einem sehr großen Grundstück und Ausbaureserven. Zum Haus gehört der Garten und ein großes Rebgrundstück.Die Übergabe des Objekts erfolgt frei nach Absprache. Ideal für handwerklich begabte Käufer, die das Haus nach ihren eigenen Vorstellungen gestalten möchten. Mit etwas Liebe zum Detail und handwerklichem Geschick können Sie hier Ihr Traumhaus verwirklichen. In der geräumigen Scheune können Sie Ihre eigenen Projekte realisieren oder zusätzlichen Stauraum schaffen. Lassen Sie Ihrer Kreativität freien Lauf und gestalten Sie dieses Haus zu Ihrem persönlichen Wohlfühlort.
Online - Lage
Das angebotene Objekt ist ein charmantes Einfamilienhaus, welches sich in der idyllischen Ortschaft Niederrotweil in Vogtsburg im Kaiserstuhl befindet. Die Lage des Hauses am Ortsrand bietet eine ruhige und entspannte Wohnatmosphäre.Niederrotweil ist ein Teilort der Stadt Vogtsburg, welche aus mehreren Gemeinden besteht. Der Bahnhof im nächsten Ort Oberrotweil ist gut erreichbar und liegt nur einen Kilometer entfernt. Von Oberrotweil gibt es eine direkte Zugverbindung nach Riegel bzw. Breisach. Von Breisach aus besteht eine direkte und schnelle Verbindung nach Freiburg.
Mit dem Auto ist Freiburg in ca. 30min gut erreichbar.
In Oberrotweil gibt es zudem Einkaufsmöglichkeiten, Ärzte und Apotheken. Auch die Grundschule und ein Kindergarten befinden sich im nächsten Ort.
Das nächste Zentrum, die Stadt Breisach am Rhein ist in gut 8 Kilometer erreichbar. Dort befinden sich die Realschule sowie das Gymnasium und weitere Einkaufsmöglichkeiten.
Umgeben von kulinarischen Weinwanderpfaden bietet die Lage des Hauses eine harmonische Verbindung zwischen ruhigem Landleben und einer guten Anbindung an die umliegenden Städte und Infrastruktur.
Online - Sonstige Angaben
Sie haben Interesse und möchten zeitnah die Immobilie besichtigen? Kein Problem! Schicken Sie uns gerne Ihre Anfrage, Sie werden von der Immobilie begeistert sein!Alle vom Eigentümer bereitgestellten Informationen werden als zuverlässig erachtet, aber nicht garantiert und sollten unabhängig verifiziert werden. Wir übernehmen keinerlei Gewähr für die Richtigkeit der Angaben.
Der Courtageanteil des Käufers beträgt 2,98% des tatsächlichen Kaufpreises inklusive der gesetzlichen Mehrwertsteuer.
Der Courtageanteil ist im Kaufpreis nicht enthalten und ist vom Käufer an uns zu zahlen. Er ist fällig und zahlbar bei Notariat.
