IMMORath.de - Einfamilienhaus in Vörstetten Ruhige Lage, Perfekte Anbindung
Verkauft


















- Objektart
- Haus
- Objekttyp
- Einfamilienhaus
- Vermarktungsart
- Kauf
- PLZ
- 79279
- Ort
- Vörstetten
- ImmoNr
- IR0824224
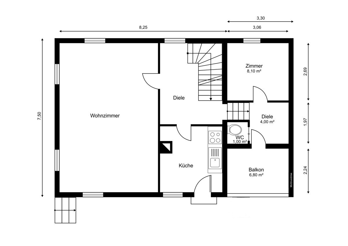
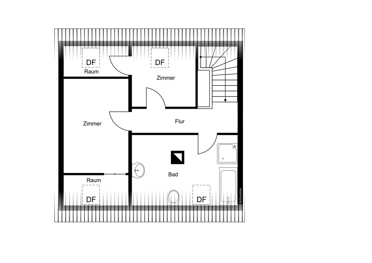
- Wohnfläche
- ca. 120 m²
- Grundstücksgröße
- ca. 170 m²
- Nutzfläche
- ca. 50 m²
- Anzahl Zimmer
- 4
- Anzahl Badezimmer
- 1
- Kaufpreis
- 290.000,00 €
- Baujahr
- 1910
- Endenergiebedarf
- 476 kWh/(m²a)
- Energieausweis
- Bedarfsausweis
- Energieausweis gültig bis
- 19.03.2034
- Energieeffizienzklasse
- H
- Käuferprovision
- 3,57%
- wesentlicher Energieträger
- Öl
Online - Beschreibung
- Einfamilienhaus zum Kauf in der charmanten Gemeinde Vörstetten- Baujahr 1910, gepflegt mit historischem Charme
- Grundstücksgröße von ca. 170 m², mit einem Stellplatz und Garage
- Wohnfläche von ca. 120 m² verteilt auf 3 Etagen, ideal für Familien oder Paare
- Zusätzlich ca. 50 m² Kellerraum für weiteren Stauraum
- Aufteilung in 4 geräumige Zimmer und 1 modernes Badezimmer
- Übergabemöglichkeit frei nach Absprache, flexibel an Ihre Bedürfnisse anpassbar
Erleben Sie die perfekte Kombination aus historischem Flair und modernem Wohnkomfort in diesem einladenden Einfamilienhaus in Vörstetten. Ein besonderes Zuhause wartet auf Sie!
Online - Lage
Das charmante Einfamilienhaus befindet sich im idyllischen Vörstetten. Vörstetten zeichnet sich durch seine ruhige und familienfreundliche Umgebung aus und bietet eine perfekte Balance zwischen ländlichem Charme und städtischer Anbindung. In nur 10 min erreicht man die Innenstadt von Freiburg.Die Entfernung zum Zentrum Gundelfingen beträgt nur wenige Kilometer, was Ihnen schnellen Zugang zu den vielfältigen Einkaufsmöglichkeiten, Restaurants und kulturellen Angeboten der näheren Umgebung bietet. Die nahegelegene Autobahn ist nur etwa 5,5 km entfernt, wodurch Sie zügige Verbindungen zu umliegenden Städten und Regionen genießen.
Für junge Familien ist die Lage besonders attraktiv: Ein Kindergarten sowie eine Grundschule befinden sich im Ort, was kurze Wege für Eltern und Kinder bedeutet. Auch weiterführende Schulen sind gut erreichbar; die nächste Realschule liegt etwa 4,3 km in Denzlingen und das nächstgelegene Gymnasium nur etwa 3,2 km in Gundelfingen entfernt.
Diese bevorzugte Wohnlage in Vörstetten bietet somit eine sehr gute Infrastruktur und lebenswerte Umgebung, die sich ideal für Familien und Berufspendler eignet.
Online - Sonstige Angaben
Sie haben Interesse und möchten zeitnah die Immobilie besichtigen? Kein Problem! Schicken Sie uns gerne Ihre Anfrage, Sie werden von der Immobilie begeistert sein!Alle vom Eigentümer bereitgestellten Informationen werden als zuverlässig erachtet, aber nicht garantiert und sollten unabhängig verifiziert werden. Wir übernehmen keinerlei Gewähr für die Richtigkeit der Angaben.
Der Courtageanteil des Käufers beträgt 3,57% des tatsächlichen Kaufpreises inklusive der gesetzlichen Mehrwertsteuer.
Der Courtageanteil ist im Kaufpreis nicht enthalten und ist vom Käufer an uns zu zahlen. Er ist fällig und zahlbar bei Notariat.
