IMMORath.de - 2 Zimmerwohnung in zentraler Lage / Erbbau
Verkauft







- Objektart
- Wohnung
- Objekttyp
- Etagenwohnung
- Vermarktungsart
- Kauf
- PLZ
- 79106
- Ort
- Freiburg im Breisgau
- ImmoNr
- IR1224249
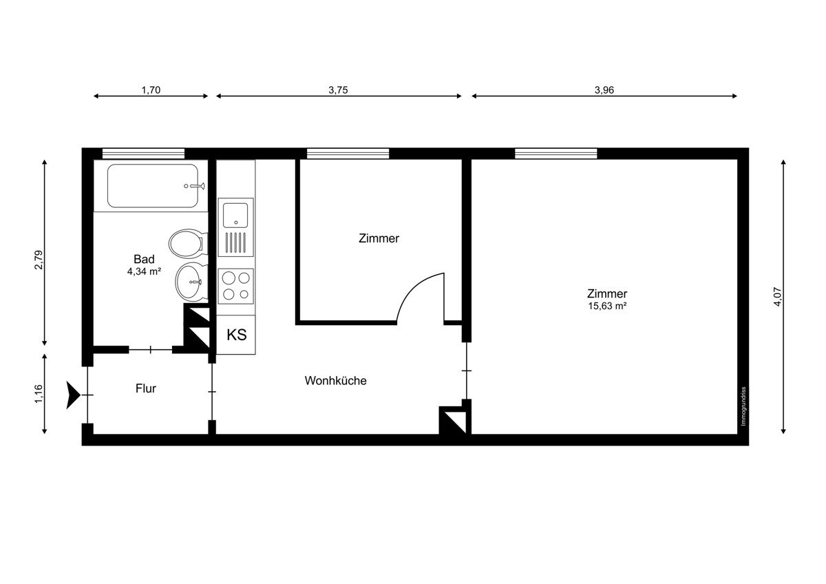
- Wohnfläche
- ca. 36 m²
- Anzahl Zimmer
- 2
- Anzahl Badezimmer
- 1
- Kaufpreis
- 150.000,00 €
- Baujahr
- 1953
- Endenergiebedarf
- 174,5 kWh/(m²a)
- Energieausweis
- Bedarfsausweis
- Energieausweis gültig bis
- 24.06.2030
- Energieeffizienzklasse
- F
- Käuferprovision
- 3,57%
- wesentlicher Energieträger
- Erdgas schwer
Online - Beschreibung
- Charmante Etagenwohnung in zentraler Lage von Freiburg im Breisgau- Erbbaurecht: ein attraktives Kaufangebot in begehrter Region
- Baujahr 1953: rustikaler Charme mit Potenzial zur individuellen Gestaltung
- Renovierungsbedürftig: Ideal für Handwerker oder kreative Köpfe
- Wohnfläche von ca. 36 m² verteilt auf 2 Zimmer und Balkon
- Praktischer Grundriss: 1 Badezimmer vorhanden
- Sonnenbalkon: Perfekt für entspannte Stunden im Freien
- Großzügiger Keller für zusätzlichen Stauraum
- Frei nach Absprache: Flexibilität bei der Übergabe
- Ideal für Kapitalanleger oder zur Selbstnutzung
- Hervorragende Anbindung an öffentliche Verkehrsmittel, Einkaufsmöglichkeiten und Freizeitangebote
Online - Lage
Die Etagenwohnung befindet sich in einer der begehrtesten Lagen von Freiburg im Breisgau, einem dynamischen und kulturell reichen Zentrum im Südwesten Deutschlands. Mit der exzellenten Nähe zum Stadtzentrum, das lediglich etwa einen Kilometer entfernt liegt, bietet dieses Objekt eine ideale Kombination aus urbanem Leben und entspannter Wohnatmosphäre.Die Verkehrsanbindung ist hervorragend: Die Autobahn A5 ist in circa 5,5 Kilometern schnell zu erreichen, was Pendlern und Reisenden entgegenkommt. Familien mit Kindern profitieren von der Nähe zu Bildungseinrichtungen – eine Grundschule befindet sich in nur etwa 400 Metern Entfernung und auch weiterführende Schulen wie Realschule und Gymnasium sind in einem Umkreis von maximal 500 Metern leicht zu Fuß zu erreichen. Ein Kindergarten liegt etwa 1,2 Kilometer entfernt, was die familienfreundliche Ausrichtung dieser Lage unterstreicht.
Die Umgebung ist bekannt für ihr lebendiges Kulturleben und die unmittelbare Nähe zur Natur des Schwarzwaldes. Genießen Sie einen Spaziergang oder eine Fahrradtour auf den zahlreichen Grünflächen oder einen Besuch der nahegelegenen Cafés, Restaurants und Einkaufsmöglichkeiten. Diese Wohnung vereint die Vorzüge städtischen Wohnens mit der Ruhe und Gelassenheit einer naturnahen Umgebung – eine einmalige Gelegenheit für alle, die das Beste aus beiden Welten suchen.
Online - Sonstige Angaben
Sie haben Interesse und möchten zeitnah die Immobilie besichtigen? Kein Problem! Schicken Sie uns gerne Ihre Anfrage, Sie werden von der Immobilie begeistert sein!Alle vom Eigentümer bereitgestellten Informationen werden als zuverlässig erachtet, aber nicht garantiert und sollten unabhängig verifiziert werden. Wir übernehmen keinerlei Gewähr für die Richtigkeit der Angaben.
Der Courtageanteil des Käufers beträgt 3,57% des tatsächlichen Kaufpreises inklusive der gesetzlichen Mehrwertsteuer.
Der Courtageanteil ist im Kaufpreis nicht enthalten und ist vom Käufer an uns zu zahlen. Er ist fällig und zahlbar bei Notariat.
