IMMORath.de - Wohnung im EG mit zwei Balkonen und Mansardenzimmer
Verkauft














- Objektart
- Wohnung
- Objekttyp
- Etagenwohnung
- Vermarktungsart
- Kauf
- PLZ
- 79189
- Ort
- Bad Krozingen
- ImmoNr
- IR0925360
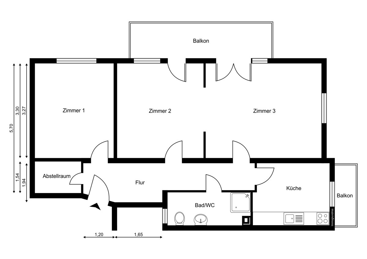
- Wohnfläche
- ca. 89 m²
- Anzahl Zimmer
- 4
- Anzahl Badezimmer
- 1
- Kaufpreis
- 325.000,00 €
- Baujahr
- 1960
- Endenergieverbrauch
- 187,9 kWh/(m²a)
- Energieausweis
- Verbrauchsausweis
- Energieausweis gültig bis
- 20.10.2029
- Energieeffizienzklasse
- F
- Käuferprovision
- 3,57%
- wesentlicher Energieträger
- Gas
Online - Beschreibung
- Helle Wohnung im Hochparterre in gefragter Lage von Bad Krozingen- Baujahr 1960, gepflegter Zustand
- Ca. 89 m² Wohnfläche
- 3 geräumige Zimmer plus ein zusätzliches Mansardenzimmer im Dachgeschoss
- Modernes Badezimmer und Gäste-WC vorhanden
- Zwei einladende Balkone für entspannte Stunden im Freien
- Praktischer Kellerraum zusätzlich verfügbar
- Übergabe frei nach Absprache, bezugsfrei
- Perfekte Kombination aus Komfort und Stil in einer ruhigen Wohngegend
Sprechen Sie uns an für weitere Informationen und Unterlagen!
Online - Lage
Die angebotene Wohnung befindet sich in Bad Krozingen, einer charmanten Stadt im Herzen des Breisgaus, die bekannt ist für ihre Thermen und ihre einladende Umgebung. Diese Immobilie liegt in einer begehrten Wohnlage, die ihren Bewohnern sowohl die Ruhe einer gepflegten Wohngegend als auch die Nähe zu zahlreichen Annehmlichkeiten bietet.Der Stadtkern von Bad Krozingen bietet eine Vielzahl von Einkaufsmöglichkeiten, darunter Supermärkte wie Rewe, DM und Edeka, sowie zahlreiche Arztpraxen und Apotheken. Dies gewährleistet eine hervorragende Versorgungslage direkt vor der Haustür.
Familien werden die Nähe zu Bildungseinrichtungen zu schätzen wissen: Ein Kindergarten und ein Gymnasium sind in weniger als 300 Metern erreichbar, während Grund- und Realschulen sich nur etwa 600 Meter entfernt befinden.
Für Pendler und Reisende ist der Bahnhof und die nächste Bushaltestelle in wenigen Minuten erreichbar, was eine unkomplizierte Anbindung an den Regionalverkehr garantiert. Zudem befindet sich die nächste Autobahnauffahrt nur wenige Kilometer entfernt, was eine schnelle Erreichbarkeit von umliegenden Städten ermöglicht.
Diese Lage kombiniert geschickt den Komfort des Stadtlebens mit der Ruhe der Natur und bietet somit eine perfekte Wohnlösung für verschiedenste Anforderungen und Lebensstile.
Online - Sonstige Angaben
Sie haben Interesse und möchten zeitnah die Immobilie besichtigen? Kein Problem! Schicken Sie uns gerne Ihre Anfrage, Sie werden von der Immobilie begeistert sein!Alle vom Eigentümer bereitgestellten Informationen werden als zuverlässig erachtet, aber nicht garantiert und sollten unabhängig verifiziert werden. Wir übernehmen keinerlei Gewähr für die Richtigkeit der Angaben.
Der Courtageanteil des Käufers beträgt 3,57% des tatsächlichen Kaufpreises inklusive der gesetzlichen Mehrwertsteuer.
Der Courtageanteil ist im Kaufpreis nicht enthalten und ist vom Käufer an uns zu zahlen. Er ist fällig und zahlbar bei Notariat.
