IMMORath.de - Attraktive Wohnung mit Stellplatz
Verkauft








- Objektart
- Wohnung
- Objekttyp
- Hochparterre
- Vermarktungsart
- Kauf
- PLZ
- 79189
- Ort
- Bad Krozingen
- ImmoNr
- IR1125419
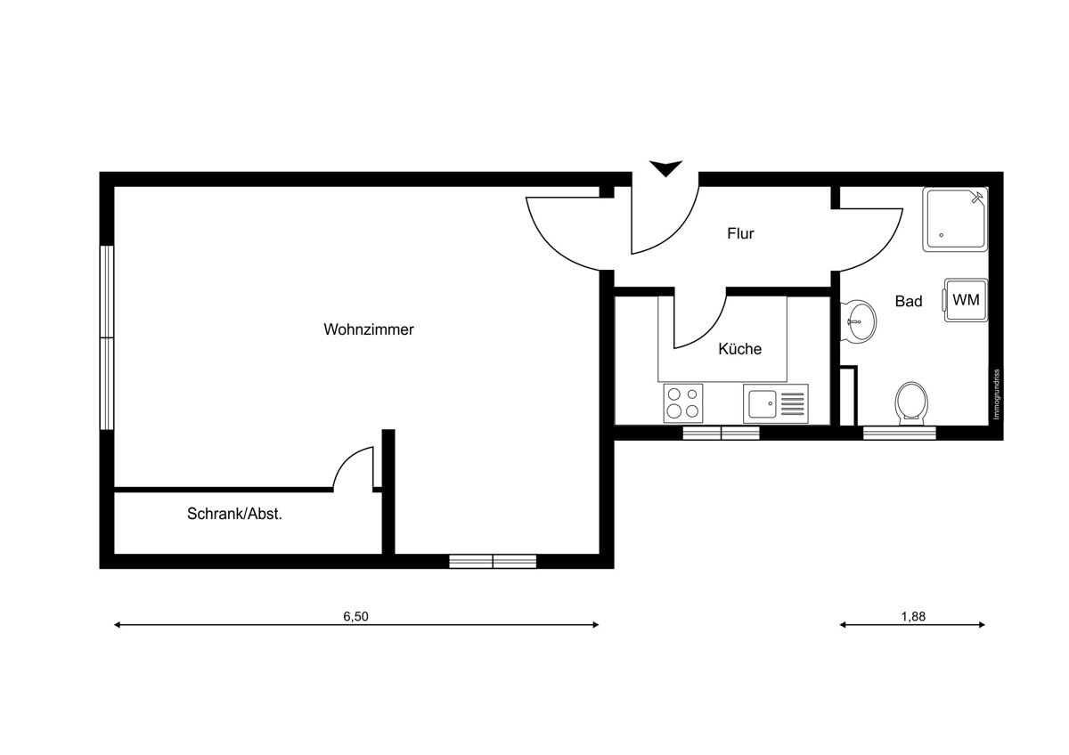
- Wohnfläche
- ca. 40 m²
- Anzahl Zimmer
- 1
- Anzahl Badezimmer
- 1
- Kaufpreis
- 169.000,00 €
- Baujahr
- 1975
- Endenergieverbrauch
- 81,4 kWh/(m²a)
- Energieausweis
- Verbrauchsausweis
- Energieausweis gültig bis
- 12.11.2028
- Energieeffizienzklasse
- C
- Käuferprovision
- 3,57%
- wesentlicher Energieträger
- Gas
Beschreibung
- Charmante 1-Zimmer-Wohnung im Hochparterre in gepflegtem Zustand- Wohnfläche von ca. 40,28 m², optimal für Singles oder Pendler
- Baujahr 1975, regelmäßig instandgehalten
- Modernisierte Energielösung: Installation einer neuen Wärmepumpe im Jahr 2025
- Gut ausgestattete Einbauküche im Kaufpreis enthalten
- Funktionaler Einbauschrank, ideal für zusätzlichen Stauraum
- Eigenes Kellerabteil zum Abschließen, sowie weiterhin gemeinschaftlich nutzbarer Fahrradkeller
- Gemeinschaftsgarten
- Stellplatz vorhanden, ideal für Autonutzer
- Flexible Übergabe, frei nach Vereinbarung
- Attraktive Lage in Bad Krozingen, in unmittelbarer Nähe zu Angeboten des täglichen Bedarfs und Erholungsmöglichkeiten
Lage
Die angebotene Wohnung befindet sich in einer begehrten und zentralen Lage in Bad Krozingen, einer charmanten Stadt im Südwesten Deutschlands. Diese Hochparterre-Wohnung ist nur einen kurzen Spaziergang von etwa 500 Metern vom Stadtzentrum entfernt, was Ihnen bequemen Zugang zu allen städtischen Annehmlichkeiten bietet.Für Ihre täglichen Besorgungen befinden sich Einkaufsmöglichkeiten in einer Entfernung von ca. 650 Metern. Auch gesundheitliche Versorgungseinrichtungen sind leicht erreichbar: Eine Arztpraxis ist nur 500 Meter entfernt, während die nächste Apotheke etwa 700 Meter entfernt liegt.
Der öffentliche Nahverkehr ist hervorragend angebunden, mit einer Bushaltestelle nur 130 Meter von Ihrer Haustür entfernt. Der Bahnhof Bad Krozingen befindet sich ebenfalls in fußläufiger Entfernung von etwa 850 Metern, was Ihnen zusätzliche Flexibilität für Reisen in die umliegende Region bietet.
Für Pendler ist die Autobahn schnell erreichbar; sie liegt etwa 4,6 Kilometer von der Wohnung entfernt und bietet Ihnen eine schnelle und direkte Verbindung zu weiteren Zielen. Diese Lage vereint Komfort mit einer bequemen Anbindung an Infrastruktur und Naturerlebnisse und bietet Ihnen somit ein ideales Zuhause im Herzen von Bad Krozingen.
Sonstige Angaben
Sie haben Interesse und möchten zeitnah die Immobilie besichtigen? Kein Problem! Schicken Sie uns gerne Ihre Anfrage, Sie werden von der Immobilie begeistert sein!Alle vom Eigentümer bereitgestellten Informationen werden als zuverlässig erachtet, aber nicht garantiert und sollten unabhängig verifiziert werden. Wir übernehmen keinerlei Gewähr für die Richtigkeit der Angaben.
Der Courtageanteil des Käufers beträgt 3,57% des tatsächlichen Kaufpreises inklusive der gesetzlichen Mehrwertsteuer.
Der Courtageanteil ist im Kaufpreis nicht enthalten und ist vom Käufer an uns zu zahlen. Er ist fällig und zahlbar bei Notariat.
Einzelne Bilder wurden digital optimiert (KI-gestütztes Wetter- und Umgebungs-Editing). Die bauliche Substanz wurde nicht verändert. Die Darstellungen dienen der Illustration; verbindlich ist der Zustand bei der persönlichen Besichtigung.
