IMMORath.de - Zweifamilienhaus mit viel Platz & Garten
Neu
































- Objektart
- Haus
- Objekttyp
- Zweifamilienhaus
- Vermarktungsart
- Kauf
- PLZ
- 79235
- Ort
- Vogtsburg
- ImmoNr
- IR0426532
- Wohnfläche
- ca. 234 m²
- Grundstücksgröße
- ca. 1.000 m²
- Nutzfläche
- ca. 226 m²
- Anzahl Zimmer
- 9
- Anzahl Badezimmer
- 3
- Kaufpreis
- 699.000,00 €
- Baujahr
- 1980
- Endenergieverbrauch
- 110,3 kWh/(m²a)
- Energieausweis
- Verbrauchsausweis
- Energieausweis gültig bis
- 10.04.2036
- Energieeffizienzklasse
- D
- Käuferprovision
- 3,57%
- wesentlicher Energieträger
- Gas
Online - Beschreibung
Gepflegtes Mehrfamilienhaus in Vogtsburg-Oberrotweil- Großzügige Wohnfläche von ca. 234 m²
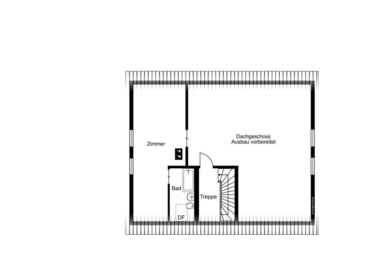
- zwei 4-Zimmerwohnungen und eine 1-Zimmerwohnung im Dachgeschoss
- weitere vorbereitete Ausbaureserve im Dachgeschoss
- Neun Zimmer für flexible Nutzung
- Drei Badezimmer und drei Gäste-WCs
- Ausstattung mit zwei Terrassen und Balkon
- Integrierte Einbauküche im EG vorhanden
- Zentralheizung als Heizsystem (2018) mit Solarthermie
- Acht Stellplätze durch vier Garagen und vier Freiplätze
- Vollständig unterkellert
- Entkalkungsanlage
- Nutzfläche im kleinen Wirtschaftsgebäude und Anbau
- Gepflegter Erhaltungszustand des Gebäudes
Sprechen Sie uns gern für weitere Informationen oder für einen Besichtigungstermin an!
Online - Lage
Die Immobilie befindet sich in Vogtsburg-Oberrotweil, eingebettet in die markante Landschaft des Kaiserstuhls. Diese Lage überzeugt durch eine attraktive Verbindung aus naturnaher Umgebung und einer funktionalen Infrastruktur, die den Alltag praktisch gestaltet.Für Besorgungen des täglichen Bedarfs ist der Ortskern von Oberrotweil schnell erreicht. Dort stehen ein Edeka sowie weitere Fachgeschäfte für den Wocheneinkauf zur Verfügung.
Die medizinische Versorgung ist durch ortsansässige Ärzte und eine Apotheke im nahen Umkreis sichergestellt. Eine Bushaltestelle liegt mit ca. 200 m Entfernung nahezu vor der Haustür und ermöglicht eine unkomplizierte Nutzung des öffentlichen Nahverkehrs. Der Bahnhof in Oberrotweil bietet zudem eine regelmäßige Anbindung für Pendler in Richtung Freiburg oder Breisach.
Bildungseinrichtungen befinden sich in einem komfortablen Radius: Kindergarten und Grundschule befinden sich beide im gleichen Ort. Weiterführende Schulen in Breisach sind mit dem Auto oder Bus gut angebunden. Dank der ca. 12,8 km entfernten Autobahn A5 ist die Region auch für Berufstätige mit größerem Aktionsradius bestens erschlossen.
In ca. 400m gibt es ein Freibad, die Umgebung lädt direkt zu Freizeitaktivitäten im Freien ein und unterstreicht die hohe Lebensqualität in dieser gefragten Weinbauregion.
Online - Sonstige Angaben
Sie haben Interesse und möchten zeitnah die Immobilie besichtigen? Kein Problem! Schicken Sie uns gerne Ihre Anfrage, Sie werden von der Immobilie begeistert sein!Sämtliche vom Eigentümer bereitgestellten Informationen werden von IMMORath als zuverlässig erachtet, aber nicht garantiert und sollten unabhängig verifiziert werden. Eine verbindliche Prüfung der Mieteinnahmen, der Mietverträge sowie der technischen Anlagen und Flächenmaße obliegt ausdrücklich dem Käufer. Wir weisen darauf hin, dass das Bildmaterial teilweise mittels KI optimiert wurde, um Wetterverhältnisse anzupassen oder störende Gegenstände zu entfernen. Diese Visualisierungen dienen rein der Illustration und stellen keinen garantierten Zustand dar. IMMORath übernimmt keinerlei Gewähr für die Richtigkeit der Angaben.
Der Courtageanteil des Käufers beträgt 3,57% des tatsächlichen Kaufpreises inklusive der gesetzlichen Mehrwertsteuer.
Der Courtageanteil ist im Kaufpreis nicht enthalten und ist vom Käufer an uns zu zahlen. Er ist fällig und zahlbar bei Notariat.
