IMMORath.de - Mehrfamilienhaus mit viel Fläche zur Gestaltung
Neu































- Objektart
- Haus
- Objekttyp
- Mehrfamilienhaus
- Vermarktungsart
- Kauf
- PLZ
- 79359
- Ort
- Riegel
- ImmoNr
- IR0426539
- Wohnfläche
- ca. 233 m²
- Grundstücksgröße
- ca. 1.481 m²
- Anzahl Zimmer
- 11
- Anzahl Badezimmer
- 3
- Kaufpreis
- 1.090.000,00 €
- Baujahr
- 1909
- Endenergieverbrauch
- 49 kWh/(m²a)
- Energieausweis
- Verbrauchsausweis
- Energieausweis gültig bis
- 22.07.2035
- Energieeffizienzklasse
- A
- Käuferprovision
- 3,57%
- wesentlicher Energieträger
- Luft/Wasser Wärmepumpe
Online - Beschreibung
Großzügiges Mehrfamilienhaus mit 3 Wohneinheiten in Riegel- Baujahr 1909, umfangreiche Sanierung 2011 auf KFW 85
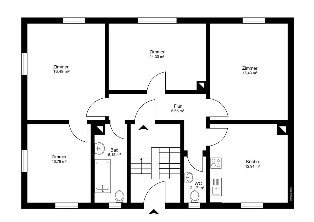
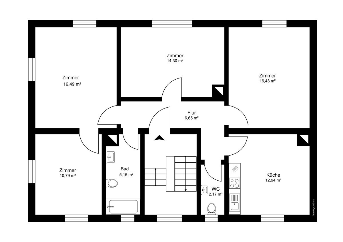
- Ca. 233 m² Gesamtwohnfläche, aufgeteilt auf insgesamt elf Zimmer in drei Wohneinheiten
- Wohnung mit vier Zimmern, ca. 85 m² Wohnfläche, Bad mit Badewanne, Gäste-WC, Terrasse
- Wohnung mit vier Zimmern, ca. 85 m² Wohnfläche, Bad mit Badewanne, Gäste-WC
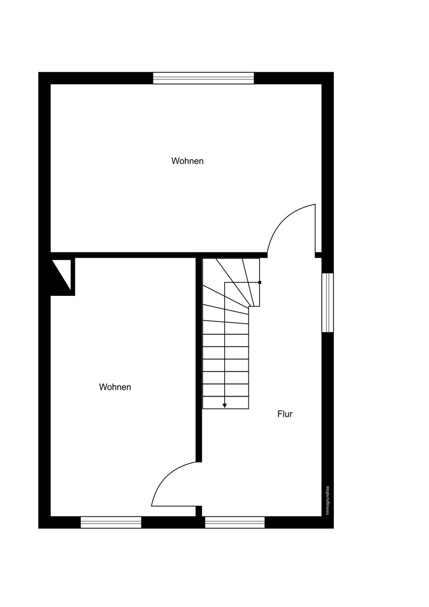
- Wohnung mit drei Zimmern, ca. 63 m² Wohnfläche, Bad mit ebenerdiger Dusche
- Alle Wohneinheiten verfügen über eine gepflegte Einbauküche
- Insgesamt acht PKW-Freiplätze direkt am Objekt
- Großzügige Staufläche durch eigene Kellerräume und Nutzungsanteile am Speicher
- Weitere Geräteräumlichkeiten; können auch als Partyraum genutzt werden
- Zeitgemäße Energieversorgung durch eine Wärmepumpe und eigener PV-Anlage
Sprechen Sie uns gern für weitere Informationen oder für einen Besichtigungstermin an!
Online - Lage
Die Lage in Riegel zeichnet sich durch eine gute Verkehrsanbindung aus, die den Alltag besonders praktisch gestaltet. Der Bahnhof Riegel-Malterdingen liegt mit einer Entfernung von nur 150 m in unmittelbarer Nähe und bietet Pendlern eine zügige Anbindung an die umliegenden Städte wie Freiburg oder Emmendingen. Auch für Autofahrer ist die Lage attraktiv, da die Autobahn A5 in lediglich 2,4 km erreicht ist, was schnelle Wege in alle Richtungen ermöglicht.Die tägliche Versorgung ist durch verschiedene Einkaufsmöglichkeiten im Umkreis von ca. 2,5 km gewährleistet. In der näheren Umgebung finden sich zudem medizinische Dienste und Apotheken, die eine verlässliche Grundversorgung im Ort sicherstellen. Bildungseinrichtungen für Kinder sind einfach erreichbar. Ein Kindergarten sowie eine Grundschule befinden sich in einer Distanz von etwa 1,6 km. Die weiterführenden Schulen in den Nachbarstädten sind durch die gute Anbindung an den öffentlichen Nahverkehr unkompliziert zugänglich.
Riegel selbst bietet als lebendiger Ort am Kaiserstuhl und Winzergemeinde eine angenehme Lebensqualität mit einer freundlichen Atmosphäre, umgeben von Weinbergen.
Online - Sonstige Angaben
Sie haben Interesse und möchten zeitnah die Immobilie besichtigen? Kein Problem! Schicken Sie uns gerne Ihre Anfrage, Sie werden von der Immobilie begeistert sein!Sämtliche vom Eigentümer bereitgestellten Informationen werden von IMMORath als zuverlässig erachtet, aber nicht garantiert und sollten unabhängig verifiziert werden. Eine verbindliche Prüfung der angegebenen Wohnfläche, der Raumaufteilung sowie der Angaben zum Hausgeld und den Rücklagen obliegt ausdrücklich dem Käufer. Wir weisen darauf hin, dass das Bildmaterial teilweise mittels KI optimiert wurde, um Wetterverhältnisse anzupassen, Gegenstände digital zu entfernen oder Einrichtungsvorschläge zu veranschaulichen. Diese Visualisierungen dienen rein der Illustration und stellen keinen garantierten Zustand dar. IMMORath übernimmt keinerlei Gewähr für die Richtigkeit der Angaben.
Der Courtageanteil des Käufers beträgt 3,57% des tatsächlichen Kaufpreises inklusive der gesetzlichen Mehrwertsteuer.
Der Courtageanteil ist im Kaufpreis nicht enthalten und ist vom Käufer an uns zu zahlen. Er ist fällig und zahlbar bei Notariat.
